Le répertoire
de la machine outil
L’outil affûté pour vos investissements
2000 fiches produits, 10044 actualités, 1432 vidéos
Le répertoire
de la machine outil
X
Accueil
Fiches produits
Actualités
Vidéos
Recherche
Nous contacter
Les
sociétes
Les
mots clés
Les
sociétes
Les
mots clés
Accueil
Société Uni Link
Annonces :
Métal Industries
-
Pro-Dis
-
Tungaloy - NTK
uni link
Demande d’information
Les actualités
1
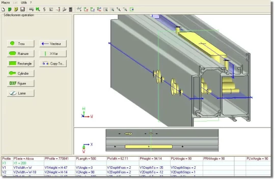
UNI LINK est un logiciel qui génère les programmes pour les bancs d'us...
15/04/2009
Uni_Link permet de créer simplement des opérations d'usinage (macros), de les vi...
> Lire
Nos partenaires
Ingersoll Cutting Tools
Métal Industries
Pro-Dis
Tungaloy
Tungaloy